• الطائف – شارع أيوب – بجوار مستشفى الأمين

نحن نفهم احتياجاتك في مجال البناء

من نحن

شركة رؤية العمارة الذكية للاستشارات الهندسية

الريادة والتميز في تقديم الاستشارات الهندسية لجمية التخصصات علي المستوي المحلي و الاقليمي تقديم أفضل الاستشارات الهندسية المبتكرة من خلال فريق عمل طموح ومتميز يقوم بتصميم مخططات هندسية معمارية وإنشائية ومخططات كهرباء وميكانيكا بأساليب حديثة ومتطورة، وتقديم وكذلك مخططات التصميم والتخطيط الحضري للقطاعات العامة والخاصة مع استخدام أحدث الأجهزة والمعدات.

لدينا سمعة ممتازة في التميز

نحن نبني شراكات قوية

نسترشد بالالتزام

فريق من المحترفين

اعمالنا

نحن نؤمن بأن تقديم الاستشارات الهندسية المبتكرة يتم من خلال تقديم حلول موثوقة ومستدامة، تعكس قيمنا التي تشمل الدقة، الابتكار، والجودة في التصميم والتنفيذ.

اصدار الرخص السكنية و التجارية

رفع كوروكيات - تقسيم ارضي - تنزيل شبكة ميزانية

تصاميم داخلية - تصاميم واجهات - تصاميم حدائق

تقارير فنية و هندسية -حصر كميات

الاتقان

المصداقية

روح الفريق الواحد

احترام العميل

الامانة

اعمالنا

المشاريع الأخيرة

project-img

بنية تحتية

project-img

مخطط عبدالناصر السري

بنية تحتية

project-img

نماذج من الاعمال المساحية

بنية تحتية

project-img

منتجع حياة المطل الهدا

بنية تحتية

project-img

مخطط الشريف

بنية تحتية

project-img

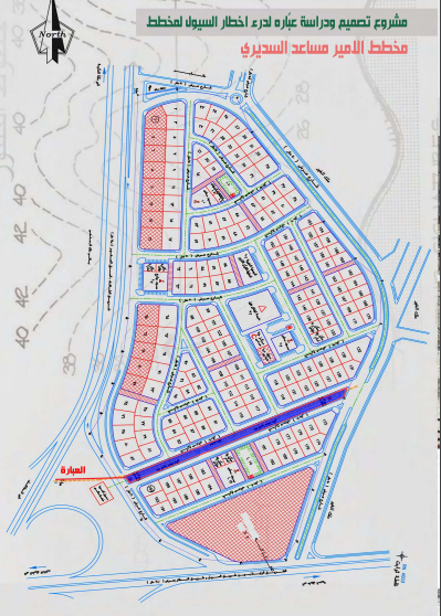
مخطط الامير مساعدالسديري

بنية تحتية

بعض الاعمال المساحية

معاملات منصة احكام

معاملات تحديث الصكوك

معاملات تهذيب الصكوك